Menu
Home
Grundstücke
Baurecht
Gemeinde
Kontakt
Home
Baurecht
Baurecht
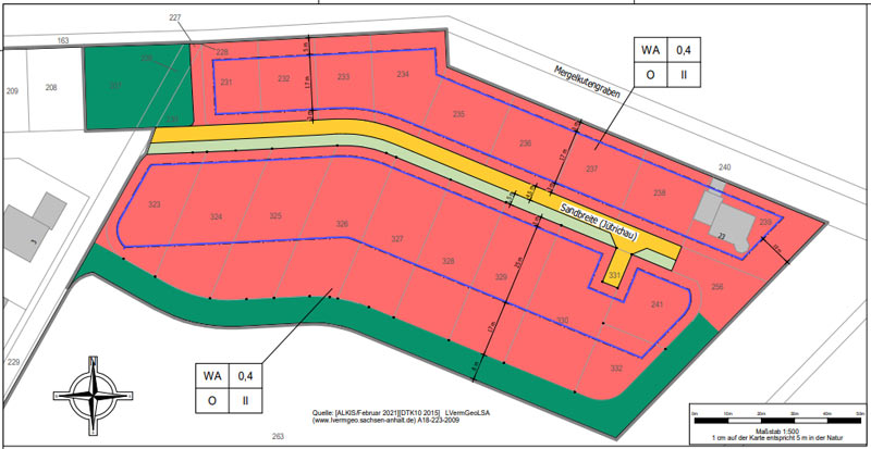
Allgemeines Wohngebiet
Bebauungsplan Nr. 2
Bitte anklicken um PDFs zu Öffnen.